Page 252 - B2B katalog 05_2024_Novaservis
P. 252

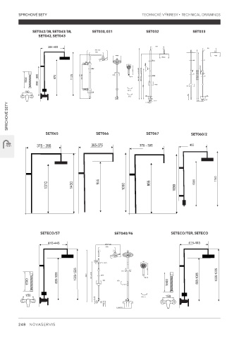
SPRCHOVÉ SETY                                                 TECHNICKÉ VÝKRESY •  TECHNICAL DRAWINGS



                 SET042/38, SET043/38,         SET030, 031                SET032                 SET033
                    SET042, SET043




















     SPRCHOVÉ SETY






                        SET065                   SET066                   SET067                SET060/2



                                                                       370 - 395                455








                                                                                                             1150
                                                                                                  1000













                     SETECO/57                            SET040/96                   SETECO/TER, SETECO



























          248   NOVASERVIS
   247   248   249   250   251   252   253   254   255   256   257